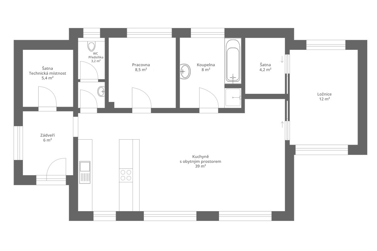
Půdorys bungalovu 3+kk, který si paní majitelka nechala navrhnout přímo na svůj pozemek


Pokračujte ve čtení níže ↓
Věk je jen číslo a dnešní příběh je jasným důkazem. „Nikdy není pozdě začít znovu,“ říká paní majitelka, která se po šedesátce rozhodla pro krok, do kterého by se řada lidí v jejím věku nepustila. Poté, co jí zemřeli rodiče, rozvedla se a děti se odstěhovaly, prodala starý dvougenerační dům a pustila se do stavby menšího a úsporného domu na důchod. I když byly její finanční představy jiné, celý proces zvládla velmi dobře. Ovšem mohl být průběh jednodušší, nebýt podvodných prodejců stavebních pozemků.
P.S. Chcete vědět, kde se dá na rozpočtu výstavby domu ušetřit a naopak kde má cenu neškudlit? Navštivte online stavební veletrh Veleton, který se uskuteční 19. ledna – 1. února 2026. Vstupenku lze stáhnout ZDARMA na tomto odkazu (počet vstupenek je limitován) . Těšit se můžete na množství inspirace, živých přednášek, konzultací s odborníky i slevové vouchery.
Photocredit: Se souhlasem majitelky dřevostavby
číst více